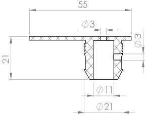
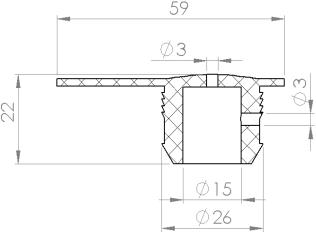
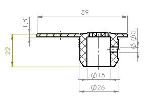
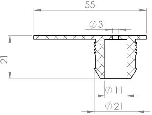
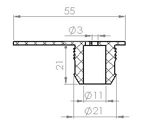
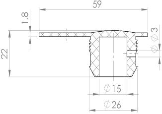
Arbejdstegning Udluftningsprop Arbejdstegning Udluftningsprop P-458-1 P-458-2 P-458-3 P-459-1 P-459-2 P-459-2